DRÖMHUS I PLANERINGSFASEN
Vi har nöjet att erbjuda dig möjligheten att förvärva en villa som planeras att byggas, och du har chansen att vara med och forma deras utseende och kvalitet från grunden!
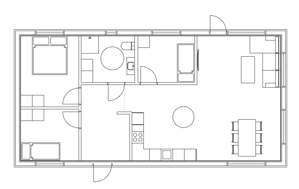
Boyta: 85 m²
En charmig och praktisk design som passar både små familjer och dem som föredrar ett mer kompakt boende. Liksom Villa 1 erbjuds möjligheten att vara med och styra materialval för att skapa din egen personliga oas. Perfekt för dem som söker ett underhållsvänligt hem utan att kompromissa med stil och bekvämlighet.
VARFÖR VÄLJA DESSA VILLOR
Möjligheten att vara med och påverka designen och materialvalen från början ger dig chansen att skapa det hem du alltid drömt om.
Beläget i det eftertraktade området Lanesund med endast 200 meter till havet, vilket ger en fantastisk möjlighet till avkoppling och rekreation vid vattnet.
Kvalitetssäkrat byggprojekt med fokus på moderna och hållbara lösningar.
Missade inte chansen att förvärva ditt drömhus i ett tidigt skede och forma det enligt dina önskemål! Kontakta oss idag för mer information och för att börja resan mot ditt nya hem!
INFORMATION
Adress
LanesundBostadstyp
VillaStatus
SåldBoarea
86 m²Tomt
920 m²Rum
4Fastighetsbeteckning
Överby 1:169Pris
4 200 000:-Kommun
UddevallaKontaktuppgifter DC Bygg i Väst
E-post: info@dcbygg.se